Nassbereiche


Haus U | Altbausanierung

Badplanung in bestehenden Wohnungsgrundriss | 2007

Baujahr 2006 | Bildaufnahme 2016

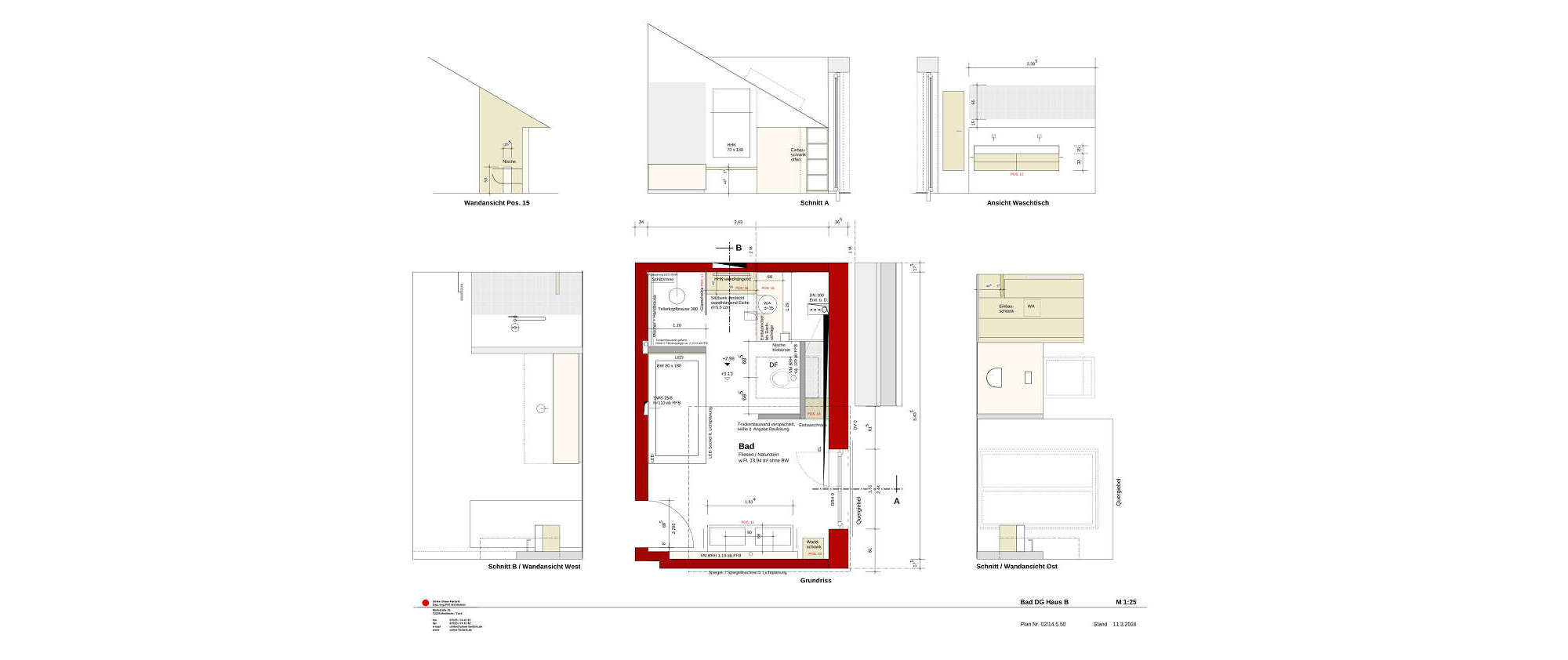
Haus B

Badplanung