• zur Hauptnavigation
  • zum Inhalt
Ulrike Ulmer-Herbrik
  • Aktuelle Projekte
  • Vorher-Nachher
  • Übergänge Innen-Aussen
  • Nassbereiche
  • Impressionen
  • Leistungen
  • Büro
  • Kontakt
  • Impressum

Aktuelle Projekte

  • Haus S
  • Umbau Hausmeisterwohnung in Kinderkrippe Holzmaden
  • Haus B
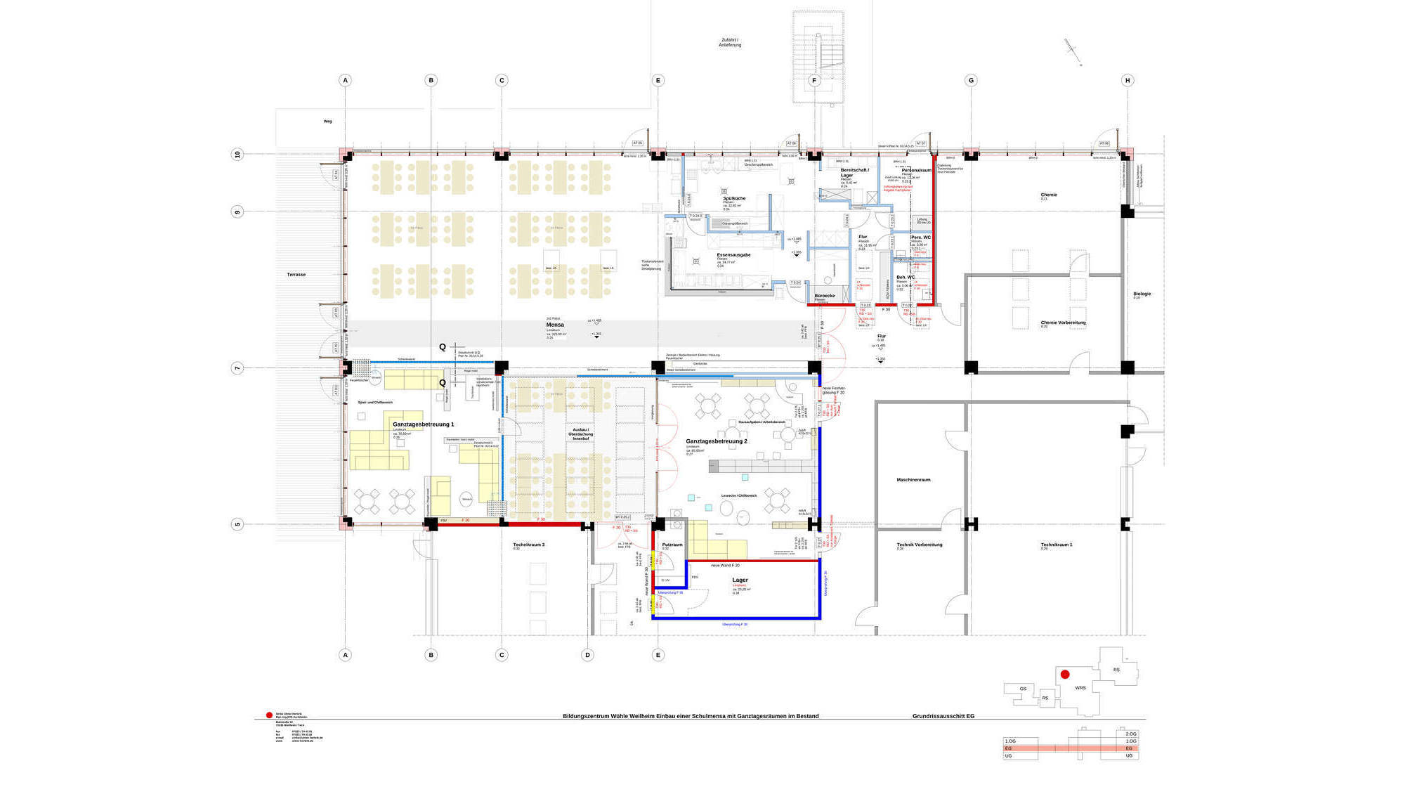
  • Einbau einer Schulmensa am Bildungszentrum Wühle

Einbau einer Schulmensa am Bildungszentrum Wühle Entwurf | Planung | Ausschreibung

Bestand
Entkernung März 2016
Mai 2016

Grundriss EG

Entkernung Februar 2016
Mai 2016
Fertigstellung September 2016
Fertigstellung September 2016
Fertigstellung September 2016